Planning ยป Application Details
Application Reference Number 2022/0912
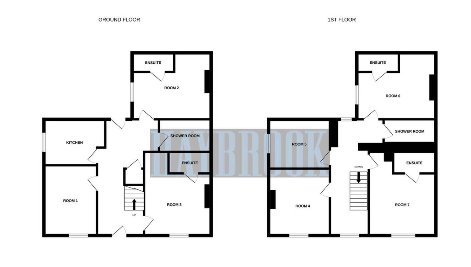
Description Change of use from dwelling (use class C3) to Children's Home (use class C2)
Site Address 186 High Street, Worsbrough Bridge, Barnsley, S70 4SQ
Received Date 2 September 2022
Valid From 2 September 2022
Decision Refuse
Status Final Decision
Applicant Name Dr Waheed Hussain
Applicant Address 10 Cliffe Parade Wakefield WF1 2TA
Parish None
Ward Worsbrough Ward
Application Type Change of Use
Determination Level Delegated
Agent Name PN Bakes Architectural Consultancy
Case Officer Name James Hyde
Case Officer Telephone 01226 772683
Case Officer Email developmentmanagement@barnsley.gov.uk
Environmental Assessment Required No
Received Date 2 September 2022
Valid From 2 September 2022
Consultation Expiry Date Not yet determined
Target Decision Date 28 October 2022
Extended Target Decision Date Not yet determined
Decision Date 21 November 2022
No appeals have been made against this application.
Address
1 Oaklea, Worsbrough Bridge, Barnsley, S70 5NS
110 Oakdale, Worsbrough Bridge, Barnsley, S70 5NR
123 Oakdale, Worsbrough Bridge, Barnsley, S70 5NR
125 Oakdale, Worsbrough Bridge, Barnsley, S70 5NR
127 Oakdale, Worsbrough Bridge, Barnsley, S70 5NR
172 High Street, Worsbrough Bridge, Barnsley, S70 4SG
188 High Street, Worsbrough Bridge, Barnsley, S70 4SQ
192 High Street, Worsbrough Bridge, Barnsley, S70 4SQ
194 High Street, Worsbrough Bridge, Barnsley, S70 4SQ
2 Oaklea, Worsbrough Bridge, Barnsley, S70 5NS
3 Oaklea, Worsbrough Bridge, Barnsley, S70 5NS
4 Oaklea, Worsbrough Bridge, Barnsley, S70 5NS
5 Oaklea, Worsbrough Bridge, Barnsley, S70 5NS
57 High Street, Worsbrough Bridge, Barnsley, S70 4SQ
59 High Street, Worsbrough Bridge, Barnsley, S70 4SQ
6 Oaklea, Worsbrough Bridge, Barnsley, S70 5NS
61 High Street, Worsbrough Bridge, Barnsley, S70 4SQ
63 High Street, Worsbrough Bridge, Barnsley, S70 4SQ
65 High Street, Worsbrough Bridge, Barnsley, S70 4SQ
67 High Street, Worsbrough Bridge, Barnsley, S70 4SQ
69 High Street, Worsbrough Bridge, Barnsley, S70 4SQ
7 Oaklea, Worsbrough Bridge, Barnsley, S70 5NS
71 High Street, Worsbrough Bridge, Barnsley, S70 4SQ
Flat Above, 194 High Street, Worsbrough Bridge, Barnsley, S70 4SQ
Flat, Greyhound Inn, 196 High Street, Worsbrough Bridge, Barnsley, S70 4SQ
Greyhound Inn, 196 High Street, Worsbrough Bridge, Barnsley, S70 4SQ
The Bungalow, 190 High Street, Worsbrough Bridge, Barnsley, S70 4SQ
Company Name Address
Childcare Services Manager, Barnsley MBC Westgate Plaza One, Westgate, Barnsley, S70 2DR
Children and Adolescent Care Homes Barnsley MBC Westgate Plaza One, Westgate, Barnsley, S70 2DR
Cllr John Clarke (Worsbrough) Worsbrough Ward c/o Member Services Town Hall Barnsley
Cllr Roy Bowser (Worsbrough) Worsbrough Ward c/o Member Services Town Hall Barnsley
Highways DC Highways and Engineering Level 2 Westgate Plaza 1 PO Box 604 Barnsley S70 9FE
Worsbrough Ward - Cllr Jake Lodge Worsbrough Ward, c/o Member Services, Town Hall, Church Street, Barnsley, S70 2TA