Planning ยป Application Details
Application Reference Number 2025/0377
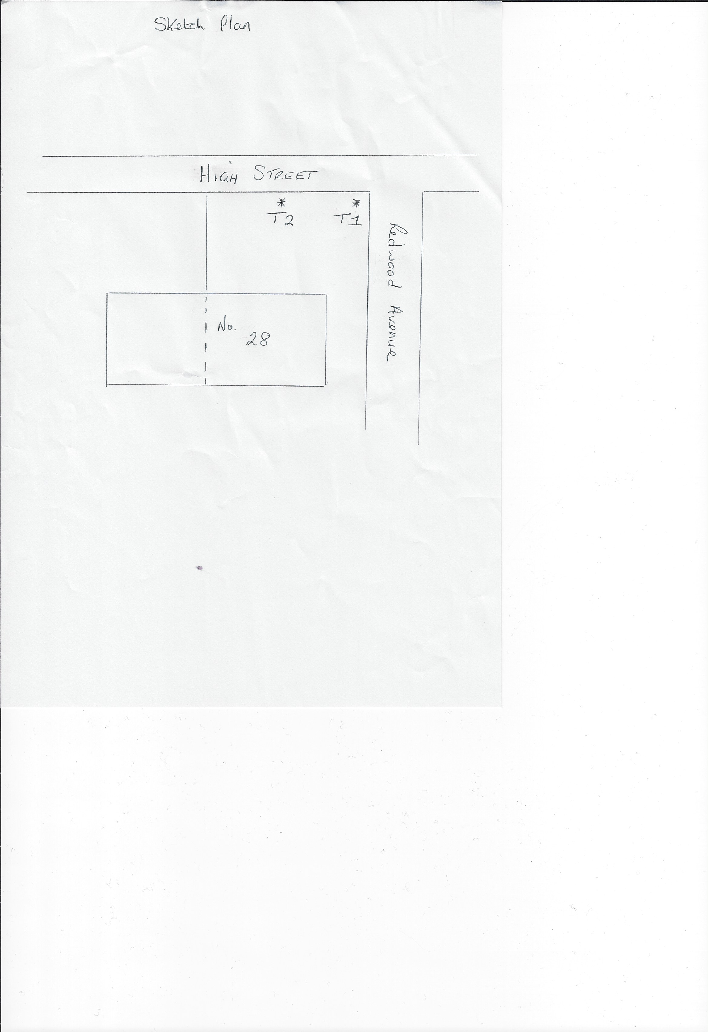
Description Crown lift Horse Chestnut T1 and Lime tree T2 to 6m and deadwood within TPO 2/1996.
Site Address 28 High Street, Royston, Barnsley, S71 4RF
Received Date 25 April 2025
Valid From 25 April 2025
Decision Under Consideration
Status Registered
Applicant Name Mrs Kelly Kelly
Applicant Address 28 High Street, Royston, Barnsley, Barnsley, S71 4RF
Parish None
Ward Royston Ward
Application Type Tree Preservation Order (TPO)
Determination Level Under Consideration
Agent Name G&A Tree Services
Case Officer Name Matthew Marsden
Case Officer Telephone 01226 772240
Case Officer Email developmentmanagement@barnsley.gov.uk
Environmental Assessment Required No
Received Date 25 April 2025
Valid From 25 April 2025
Consultation Expiry Date 6 June 2025
Target Decision Date 20 June 2025
Extended Target Decision Date 5 December 2025
Decision Date Not yet determined
Address
25 High Street, Royston, Barnsley, S71 4RF
26 High Street, Royston, Barnsley, S71 4RD
27 High Street, Royston, Barnsley, S71 4RF
29 High Street, Royston, Barnsley, S71 4RF
30 High Street, Royston, Barnsley, S71 4RF
31 High Street, Royston, Barnsley, S71 4RF
32 High Street, Royston, Barnsley, S71 4RF
Company Name Address
Forestry Officer Level 1 Westgate Plaza One PO Box 604 Barnsley S70 9FE
Please note these documents are for viewing only. Attempting to save a copy or copies may infringe on copyright laws.